ЖК Счастье | 11-этажный дом по адресу город Нефтекамск, ул Декабристов, д. 5А, вл. дом от застройщика СЗ НСЗ | ID дома: 51281 | ЕИСЖС
  1. Новостройки
  2. Новостройки в Башкортостане Республике
  3. Нефтекамск
  4. ЖК Счастье

ЖК Счастье

  • Ввод в эксплуатацию III кв. 2024

Адрес:

Башкортостан Республика, город Нефтекамск, ул Декабристов, д. 5А, вл. дом

Основные характеристики

Класс недвижимости

Комфорт

Сдача дома

III кв. 2024

Выдача ключей

30.12.2024

Материал стен

Монолит-кирпич

Количество этажей

11

Распроданность квартир

62%

Обеспеченность машиноместами

0%

Дата публикации проекта: 07.04.2023

Генподрядчики: МУП "Нефтекамскстройзаказчик" Республики Башкортостан (ИНН: 0264012190)

О доме

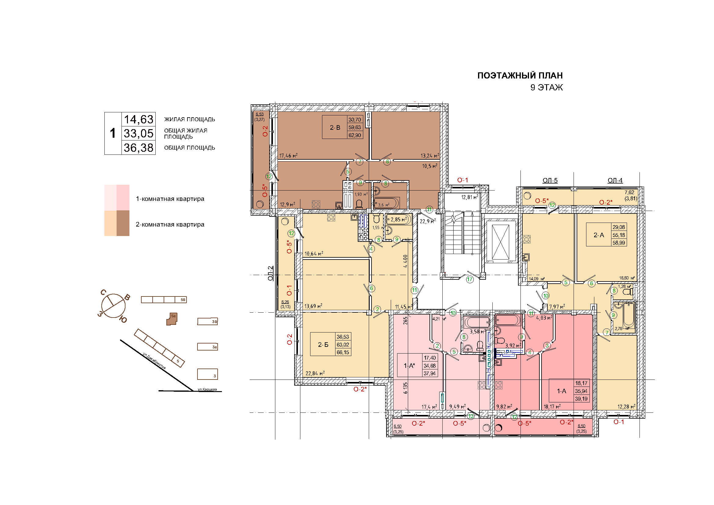
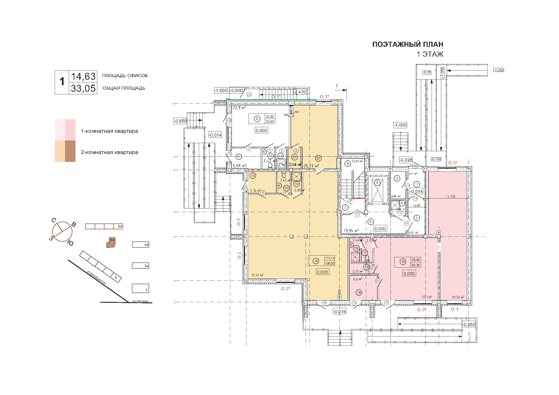
ЖК «Счастье» в городе Нефтекамск — это многоквартирный дом класса «Комфорт». Дом будет сдан в 3 кв. 2024 года. Материал стен — монолит-кирпич, максимальная этажность — 11 этажей. В комплексе 43 квартиры, среди которых 16 однокомнатных и 27 двухкомнатных. Общая жилая площадь составляет 2 329 квадратных метров.

Подробнее
Текст сгенерирован ИИ

Ход строительства

Происходит загрузка
Происходит загрузка
Происходит загрузка

Расположение

8

Доступность инфраструктуры

Результатов не найдено
Происходит загрузка
  • Документы
  • Квартирография
Документы отсутствуют
Сортировать по
Документы отсутствуют